Designing a Primary Suite That Feels Like a Boutique Hotel
- Apr 15
- 3 min read

When we began working on the primary suite at Project 36, our goal was simple: create a space that felt elevated, intimate, and purposeful—the kind of suite you might expect from a luxury boutique hotel, but tailored to real life.
This project presented a few (common) challenges for modern homeowners: utilizing a tonne of wasted space in the primary bedroom, integrating a TV and fireplace elegantly, transforming a dark and disconnected closet into a functional wardrobe, and designing a suite that feels welcoming from the moment you step in, rather than opening directly onto the bed.
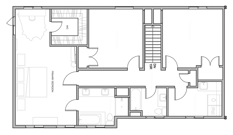
Existing floor plan:

Here’s a closer look at our thought process.

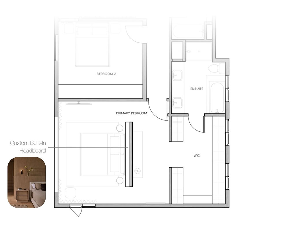
Built-In Headboards and Layered Lighting: Setting the Mood
The bed is the centerpiece of any primary suite, and for this project, we designed a custom built-in headboard that extends beyond the bed frame. This creates a sense of permanence and structure while providing opportunities for subtle task and ambient lighting. It also enabled us to add a bit of a walkway separating the closet and rest areas, adding opportunity for stylized vignettes, additional storage, and more peaceful sleeping area.
Layered lighting was key. We are planning integrated sconces, hidden LED strips, and intentional ceiling lights so the suite could shift from bright and functional in the morning to warm, soft, and hotel-like at night. This combination ensures the space feels luxurious without being impractical for everyday use.
Lighting is also where design meets problem-solving: each fixture had to complement furniture layout, the TV/fireplace wall, and bedside functionality, which we’ve been coordinating with our millwork partner to ensure a seamless experience.

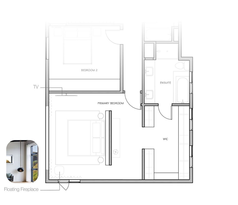
The TV and Fireplace Dilemma
A frequent challenge in primary suites is balancing entertainment and ambiance. Clients often want both a fireplace and a TV, but placing them together can feel awkward. Truthfully a TV in a bedroom is not my first choice, but it's a necessity for some.
We solved this by placing the TV where it is not in-view when walking into the room, nor does it disrupt the new expanded view to the exterior. Strategically placing it on a wall that’s only viewable from the bed itself is a way to keep the bedroom peaceful, but practical for their entertainment needs in the evening.

Reimagining the Closet: From Dark and Closed Off to Open and Accessible
Originally, the suite’s closet was dark, closed off, and disconnected from the bathroom–common in older layouts but far from functional.
We approached it like this:
Open the space: Ensure the window at the end of the walkway matches the ground floor window width, introducing more natural light and a more modern feel to this room.
Maximize accessibility: Reconfigure the storage solutions so that there’s enough accessible hanging space in multiple areas. Here, we integrated some tall storage with shorter depth outside of the main closet area, in addition to plenty of tall and short hanging space and drawers inside the closet itself. This ensures they have quick access to things they need and everything remains well organized.
Connect to the bathroom: Streamline flow for getting ready in the morning, creating a logical sequence between shower, wardrobe, and dressing.
The transformation turns a formerly awkward space into a bright, airy wardrobe sanctuary, improving both usability and aesthetic. It’s now a space you want to spend time in, rather than hide behind closed doors. Well designed hotel suites consider this separation within one room as well, ensuring a guest isn’t feeling cramped or visually overwhelmed in tight quarters.

Creating a Suite Foyer: The Hotel Experience
Walking directly into a bed can feel abrupt. Instead, we designed a suite foyer at Project 36 to be a transitional space with seating, artwork, and storage.
This small but intentional gesture:
Creates a sense of arrival, like entering a luxury hotel room.
Provides a buffer for privacy and circulation.
This is a subtle detail that elevates the entire suite, showing how small spatial interventions can dramatically improve the overall experience.
By combining custom millwork, layered lighting, fireplace/TV integration, and a rethought circulation plan, the primary suite blends luxury hotel sensibility with livable functionality.
This project also serves as a reminder that primary suites are more than just a bedroom. They are multi-functional, personal sanctuaries that should support routines, aesthetics, and comfort. We can’t wait to bring this design plan to life and bring you along through the process.
As always, we love hearing about your design dilemmas. Leave us a comment or reach out if there’s something we might be able to help with!




Comments